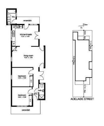
Our new house in Footscray is made of weatherboard, and although it looks small, it actually goes back a long way one room at a time, as you can see below on the plans.
We have high ceilings, polished floorboards, open-plan living, and TWO verandas! Only a little garden but that’s enough for me. You can see things are a bit sparse yet, but we are building slowly and waiting for our London stuff to turn up too.
The wall hanging that we had made for us in China takes pride of place in the lounge, strategically placed to look its best as you walk in the front door. As you can see, the house is really bright because of all the doors and French windows!
Our mantelpiece is a lovely feature, with Orlando’s Chinese swords, a big mirror above and lots of candles in the evening.
More photos as we go along!





